Skip to main content

Ranger Smith™ Cottage

Jellystone Park™ South Haven lodging 1 Location

Travel Dates & Guests

Edit
      *A daily resort fee is added to each reservation. Fee includes, Wi-Fi, activities, access to onsite facilities and more. See below for more details.

      Overview

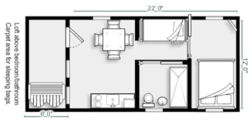
      Our cute Ranger Smith™ cottage is situated near our pool and Ranger Station. This cottage have a 6 foot porch that comes with a swing. The cottage has indoor plumbing that includes a bathroom with shower stall unit, kitchenette with 2-burner cook-top, microwave, refrigerator, toaster and a coffeemaker. Located outdoors is a park grill for charcoal use, picnic table and a fire ring. Camping could not be any easier than this. This is a great alternative to tent camping. Our cottage have air conditioning/heater combo to help us adjust to the great Michigan weather! CC12 has a Queen size log bed in a private bedroom and a twin size bunk bed on the first level. The upper level loft has a ladder to assist one to their great get-a-way. This loft (low clearance) is great for older kids and sleeping bags but is not recommended for adults. For safety reasons we ask that children under five stay downstairs. This unit measures 12′ x 22′. *Please bring towels, blankets, pillows, linens, grilling utensils, and personal items. Linen rentals available for a fee. Our price includes 2 adults and 4 children for this specific cabin. Fees apply for additional persons. *No more than 6 people will be allowed to stay in this unit, regardless of age. Club Yogi™ Rewards Level 7.
      • Lodging Features
        Air Conditioning Charcoal Grill Electricity Fire Ring Heat Kitchen Microwave Mini Fridge Pet-Friendly Picnic Table Private Bathroom Private Shower Stove Water Hook-Up Wi-Fi

      Available Locations

      Select your site location from the interactive map or list
        • Available sites
        • Available with dates/guests modification
        • Not Available
      • Ranger Smith™ Cottage Rental CC12

        Air Conditioning Charcoal Grill Electricity Fire Ring Heat Kitchen Microwave Mini Fridge Pet-Friendly Picnic Table Private Bathroom Private Shower Stove Water Hook-Up Wi-Fi
        Site is closed for your dates
        Cannot book less than 8 hours in advance
        Select

      Lock your site location?

      While we guarantee your chosen site type and amenities, our automated optimization system may change your site location.
      You can guarantee your chosen site location by paying a lock fee.

      We apologize for the bump in your journey

      Something went wrong.

      Error Title

      Address: click on address